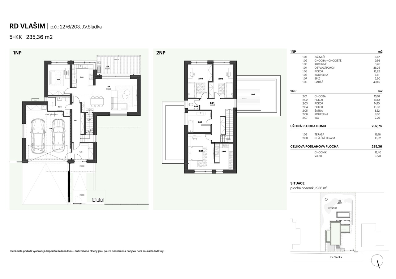
Celková podlahová plocha je 203m²
Pozemek má velikost 936m2
V domě se zatím nebydlelo, odhadované celkové náklady na provoz jsou do 5.000,-Kč měsíčně.
Hledáte moderní rodinný dům, kde je každý detail promyšlený a nic nemusíte řešit? Ve Vlašimi nabízíme novostavbu z roku 2025 o dispozici 5+kk, se dvěma koupelnami, terasou a dvojgaráží. Dům je postavený ve velmi vysokém standardu, až v luxusním stylu – ideální pro rodinu, která chce komfort, kvalitu a klidné bydlení s kompletní vybaveností města. 😊
✅ Novostavba 2025
🏠 5+kk | 2 koupelny | samostatné WC
🚗 Dvojgaráž
🪟 Velkoformátová okna s trojskly + HS portál (propojení obýváku se zahradou)
🧊 Elektrické předokenní hliníkové žaluzie + rolety
🌿 Bioklimatická hliníková pergola + screenové rolety
⚡ Nízké provozní náklady – nízkoenergetický dům
🔥 TČ NIBE (vzduch/voda) + teplovodní podlahové topení v celém domě
☀️ Příprava na FVE (fotovoltaiku)
1. NP – denní část + pokoj + zázemí
🚪 Vstupní hala s místem pro vestavěné skříně
🛁 Koupelna se sprchou a WC a bidetovou sprškou
🛋️ Obývací pokoj s kuchyňským koutem a výstupem přes HS portál na zahradu
🧑💻 Pracovna / pokoj pro hosty
🚗 Dvojgaráž
2. NP – noční část pro rodinu
🛏️ Hlavní ložnice se šatnou
🧒 2 samostatné pokoje
🛁 Koupelna s vanou + sprchovým koutem
🚻 Samostatné WC s bidetovou sprškou a umyvadlem
🌤️ Terasa přístupná z chodby
Tady se šlo opravdu po kvalitě. Celým domem se táhne jednotný moderní design, čisté linie a precizní provedení detailů.
🟫 Vinylové podlahy
🇮🇹 Velkoformátové obklady a dlažby z Itálie
💡 Promyšlené osvětlení včetně integrovaných LED
🚿 Sanita Hansgrohe, Laufen
🪟 Okna zn. Schüco s izolačními trojskly
🚪 Vstupní dveře a HS portál v hliníkovém provedení
🚪 Interiérové dveře bezfalcové s magnetickými zámky
🚘 Garážová vrata s izolační vrstvou, zn. Trido
Každá místnost je navržená tak, aby měla dost prostoru pro vestavěné skříně a praktické úložné řešení – dům působí vzdušně, ale zároveň je dokonale funkční. 😊
Pozemek je připravený pro budoucí „rodinný lifestyle“:
💧 příprava na automatickou závlahu
🏊 místo pro bazén
🧸 prostor pro dětské hřiště
A na spodní terase si zamilujete:
🟩 bioklimatickou pergolu + screenové rolety (stín, soukromí, komfort)
♨️ Tepelné čerpadlo NIBE (vzduch/voda)
🔥 Teplovodní podlahové topení v celém domě
☀️ Příprava na fotovoltaiku (FVE)
🏡 Nízká energetická náročnost
Vlašim je město, které dává smysl pro rodiny i pro ty, kdo chtějí pohodové bydlení mimo ruch velkoměsta – ale bez kompromisů.
🎓 Školky, školy, gymnázium
🛒 Běžné nákupy a služby ve městě
🏊♂️🏒 Sportovní vyžití (bazén, zimní stadion, sportovní hala aj.)
🌳 Zámecký park Vlašim – skvělé místo na procházky
🚗 Dobrá dostupnost do Prahy (cca do hodiny dle provozu)
🚆 Železniční stanice Vlašim (trať 222 směrem na Benešov a dál)
Dům je aktuálně bez nábytku, a proto v prezentaci využíváme virtuální homestaging – abyste si lépe představili, jak může vypadat zařízený. Na prohlídce uvidíte reálný prostor i jeho možnosti na maximum. 😊
Napište mi zprávu nebo zavolejte – rád vám dům osobně ukážu ✅
- Nosné zdivo Ytong Lambda YQ 450 PDK
- Vytápění TČ NIBE vzduch voda + podlahové teplovodní topení
- Okna Schüco s izolačními trojskly
- Vstupní dveře hliníkové bezpečnostní
- Hliníkový HS portál
- Hliníková bioklimatická pergola se screenovými roletami
- IS vodovod, kanalizace, elektřina
- Předokenní elektricky ovládané rolety a žaluzie
umožní pohodlně využívat terasu téměř po celý rok – naklápěcí lamely regulují stín, teplotu i větrání a při dešti umí vodu odvést mimo posezení. Screenové rolety chrání před nízkým sluncem, větrem i zvědavými pohledy a zároveň výrazně snižují přehřívání prostoru u HS portálu. Výsledkem je vyšší komfort, více soukromí a delší „sezóna“ na terase.

