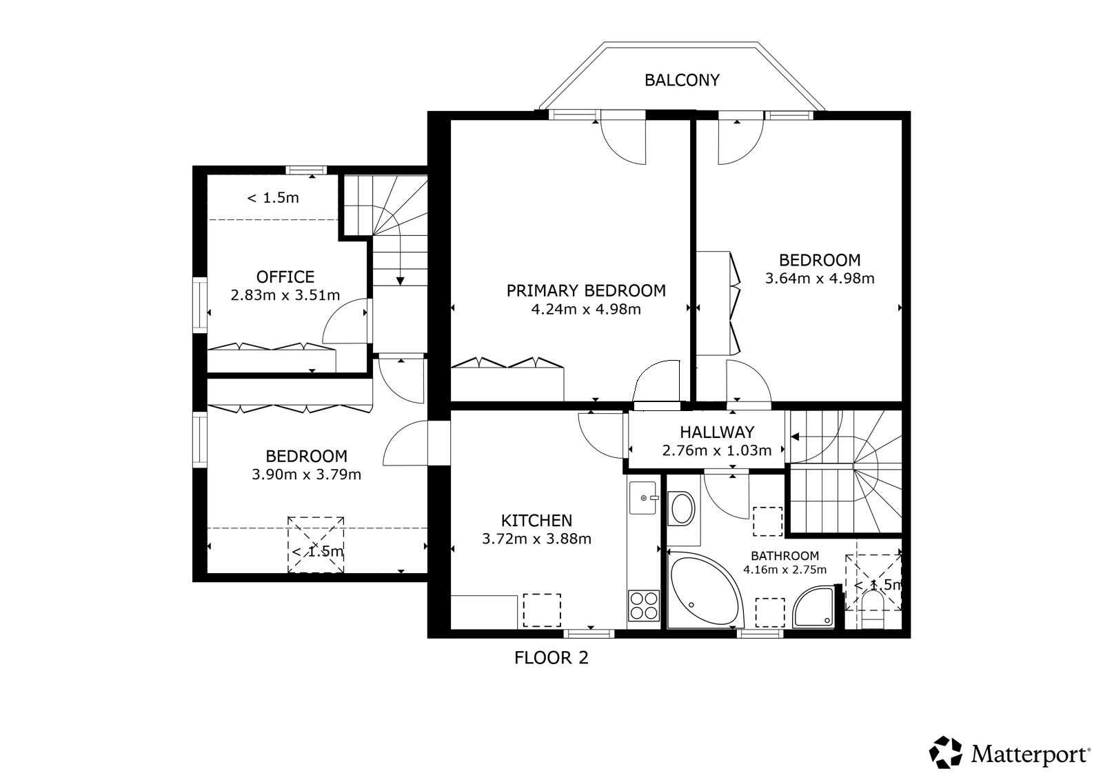
Celková podlahová plocha je 193,75 m²
Pozemek má velikost 778 m2
Celkové náklady na provoz jsou při 6 dospělých osobách cca 9.900,- Kč měsíčně.
Hledáte klidné a prostorné bydlení kousek od Prahy? Tento dvougenerační dům v obci Květnice splní požadavky na soukromí, prostor i pohodlí. Díky dvěma samostatným bytovým jednotkám a dvěma koupelnám je ideální pro dvě rodiny, vícegenerační bydlení nebo kombinaci domova a podnikání. A to vše na krásném pozemku o rozloze 778 m² se vzrostlou zelení a bazénem se slanou vodou, protiproudem, tepelným čerpadlem a zastřešením. 🌳
Bonusem už je jen další místnost, která z domu vytváří dispozici neuvěřitelných 7+2.
🛏️ Dispozice: 6+2 (vlastně 7+2, protože jako bonus je ve druhém patře pracovna)
📐 Podlahová plocha domu: 194 m²
🌿 Pozemek: 778 m²
🚪 Dva samostatné vstupy – každá jednotka má vlastní vchod
🛁 Dvě koupelny: jedna s rohovou vanou a sprchovým koutem, druhá se sprchovým koutem
🚽 Každá koupelna má vlastní toaletu
🏊 Zastřešený bazén se slanou vodou
🛖 Zahradní domek
🅿️ Parkování na pozemku
🔐 Elektrická brána na dálkové ovládání
🔥 Krb pro příjemné teplo za dlouhých zimních večerů
Dům je zděný, napojený na obecní vodovod, kanalizaci, elektřinu (230/400 V). Vytápění je řešeno tepelným čerpadlem vzduch/vzduch pomocí fancoilů v celém domě - technologie má funkci chlazení v létě, tedy nepotřebujete dodatečnou klimatizaci. Okna jsou plastová. Objekt je ve velmi dobrém technickém stavu a připravený k okamžitému užívání bez nutnosti větších investic.
📍 Lokalita – Květnice u Prahy
Květnice je klidná obec na východním okraji Prahy, která nabízí ideální kompromis mezi bydlením v přírodě a dostupností města. V obci je základní občanská vybavenost (restaurace, kavárna, dětské hřiště), širší služby jsou v Úvalech a Říčanech.
🚉 Dopravní dostupnost:
✅ Shrnutí výhod:
✔️ 2 samostatné bytové jednotky – ideální pro dvě rodiny
✔️ Soukromý bazén se slanou vodou, zastřešením, protiproudem a tepelným čerpadlem
✔️ Krásná zahrada s plně vzrostlou zelení
✔️ Elektrická vjezdová brána
✔️ Možnost okamžitého nastěhování
✔️ Výborná dostupnost do Prahy
Tato nemovitost nabízí vše, co hledáte – prostor, klid, soukromí i výbornou dostupnost. Vhodná jako rodinné bydlení, investice nebo kombinace bydlení a podnikání.
📞 Pro více informací nebo sjednání osobní prohlídky mě neváhejte kontaktovat.
Dům je rozdělen na dvě plnohodnotné bytové jednotky – každá má vlastní vstup, kuchyni, koupelnu i toaletu. To umožňuje pohodlné vícegenerační bydlení (např. rodiče + dospělé děti), nebo kombinaci bydlení a podnikání (ordinace, kancelář, ateliér).
➡️ Flexibilní využití bez zásahu do soukromí.


Pozemek o výměře 778 m² nabízí kompletní zázemí pro rodinný život – zahradu s dostatkem soukromí, krytý bazén se slanou vodou pro relaxaci i sport, a zahradní domek s dalším využitím (dílna, sklad).
➡️ Pocit venkova, jen pár minut od města.
Obec Květnice leží jen cca 20 minut jízdy od centra Prahy a je napojena na MHD i vlakové spoje přes Úvaly nebo Klánovice. Zároveň si zachovává rezidenční, klidný charakter bez tranzitního provozu.
➡️ Ideální pro ty, kteří chtějí žít mimo městský ruch, ale neztratit kontakt s Prahou.

