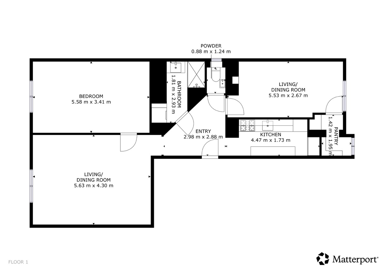
Celková výměra bytu je 76,5 m²
a navíc je k dispozici:
sklep o výměře 7 m2
Celkové náklady na provoz jsou 4766,-Kč měsíčně + elektřina a plyn.
Průkaz energetické náročnosti budovy se zpracovává, v souladu se zákonem uvádíme kategorii G.
Vítejte v místě, kde se moderní komfort setkává s geniální pražskou polohou. Tento nádherný byt o dispozici 3+1, situovaný v klidné části Prahy 7 – Holešovic, prošel kompletní a velmi pečlivou rekonstrukcí, která vám zajistí bezstarostné a energeticky úsporné bydlení na mnoho let dopředu.
🔌 Nové elektrické rozvody – bezpečné, moderní, připravené na náročný provoz
💧 Nové rozvody vody a odpadu – bez dalších investic
🔥 Nový plynový kotel + komín – efektivní a úsporné vytápění
🚿 Nová koupelna a samostatné WC – nadčasový design, kvalitní materiály
🍳 Nová kuchyňská linka vč. spotřebičů – okamžitě připravená k provozu
🪟 Plastová okna – skvělá tepelná izolace a maximální ticho
Každá místnost působí svěže, moderně a útulně. Byt je připravený pro mladý pár, rodinu i náročného jednotlivce, který chce žít v centru dění.
Holešovice se dlouhodobě řadí mezi TOP pražské čtvrti díky propojení městského komfortu, kultury a skvělé dostupnosti.
☕ stylové kavárny a moderní bistra
🛒 obchody, supermarket, služby
🏋️♂️ fitness centra, sportovní možnosti
🎨 galerie, kulturní centra, vzdělávací zařízení
🌳 parky, nábřeží Vltavy, místa pro relax
📍 Do centra Prahy se dostanete za cca 10 minut!
🚋 Tramvajové linky v docházkové vzdálenosti
🚇 Metro C – Vltavská / Nádraží Holešovice také kousek od domu
🚌 napojení na autobusové linky
🚗 rychlý dojezd na městský okruh
Ať už jezdíte do práce, do školy nebo za zábavou – všude budete opravdu rychle.
✔ Moderní rekonstrukce bez dalších investic
✔ Skvělá dispozice 3+1 – ideální pro rodinu nebo pár
✔ Výjimečná poloha v srdci Holešovic
✔ Klidná ulice Jateční, přesto krok od všeho
✔ Výborná občanská vybavenost
✔ Ideální i jako investiční příležitost
Tak napište nebo zavolejte. Rád vám domluvím prohlídku a ukážu vše, co tento krásný byt nabízí.
➡️ Bydlení, které vás chytí za srdce – přijďte se přesvědčit.
Byt prošel rozsáhlou a kvalitní rekonstrukcí, která zahrnovala nové elektrické rozvody, rozvody vody a odpadu, instalaci nového plynového kotle s komínem, novou koupelnu, samostatné WC i novou kuchyňskou linku se spotřebiči. Díky tomu získává nový majitel moderní a funkční domov, do kterého lze bezstarostně okamžitě nastěhovat, aniž by bylo potřeba řešit další stavební úpravy.


Holešovice patří mezi nejrychleji se rozvíjející a nejžádanější pražské čtvrti. Nabízí bohaté možnosti kultury, gastronomie, sportu i volnočasových aktivit. V okolí najdete parky, kavárny, restaurace, obchody i veškeré služby. Navíc jde o lokalitu, která kombinuje městský život s příjemnou atmosférou, a to v klidné části ulice Jateční.
Z bytu se dostanete do centra Prahy zhruba za 10 minut. V docházkové vzdálenosti jsou tramvajové linky i stanice metra C. Díky tomu je nemovitost ideální pro každodenní dojíždění i aktivní životní styl. Ať míříte za prací, do školy nebo za zábavou, všude budete rychle a pohodlně.

